|
Murphy DVU Series are pneumatically controlled dump valves
Murphy 摩菲DVU系列压缩机分离器洗涤罐排污阀
Murphy DVU Series Dump Valves
规格参数:
- 适用于分离器 / 洗涤罐 ; 环境压力范围至 2000 psi(13.8 Mpa) [138bar]
- 活接的应用使用户不用拆卸管线便可以更换软塞和基座
- 控制压力 30-70psi (207-483Kpa) [2.07-4.83bar]
- 与摩菲液位开关配合使用
- 软座阀门
- 手动阀调节器

Murphy DVU Series are pneumatically controlled dump valves
点击右键下载PDF中文资料介绍DVU系列排污阀
产品介绍
Murphy DVU型系列产品为气动控制排泄阀 . 该阀门由经摩菲公司 L1200NDVOR 产品或同类液位控制阀和排泄阀控制器通过的气体控制开闭 . 该阀门为压力膜片驱动 , 气体压力工作范围为 30-70psi(207-483kpa)[ 2.07-4.83bar]. 根据不同产品型号 , 容器最大允许压力为 2000psi(13.8Mpa)[138bar] 。
该产品一个方便之处在于不用把产品从管路上卸下 , 通过产品上的六角活接就可以更换基座 。
产品应用
Murphy DVU系列排泄阀安装在压缩机洗涤罐上 , 用来控制洗涤罐沉淀物的排放 。

产品规格
工作温度 :-30-250.F(-34.4-+121.C).
最大工作压力 :DVU150,DVU175:1800psi (12.4Mpa)[124bar]
DVU2105:500psi(3.44Mpa)[34bar]
DVU2115:1500psi(10.3Mpa)[103bar]
DVU2120:2000psi(13.8Mpa)[138bar]
阀体材质 : 镀镍碳钢
内部铸件 :
密封塞 :90 硬度聚氨脂
其余部件 :303 不锈钢 : 镀镍碳钢
( 以下尺寸仅供参考 )
型号 |
A |
B |
C |
D |
E |
F |
G |
DVU2120 |
7.50(191) |
8.0(203) |
2.75(70) |
1.0(25) |
2-11.5NPT |
1-11.5NPT |
1.03 |
DVU2115 |
7.50(191) |
8.0(203) |
2.75(70) |
1.0(25) |
2-11.5NPT |
1-11.5NPT |
1.03 |
DVU2105 |
7.50(191) |
8.0(203) |
2.75(70) |
1.0(25) |
2-11.5NPT |
1-11.5NPT |
1.03 |
DVU175 |
7.50(191) |
6.75(171) |
2.06(52) |
1.0(25) |
1-11.5NPT |
3/4''-14NPT |
.84(21) |
DVU150 |
7.50(191) |
6.75(171) |
2.06(52) |
1.0(25) |
1-11.5NPT |
1/2''-14NPT |
.84(21) |
摩菲天然气压缩机洗涤罐液位控制系统 (SLS) :
( 包括 :LS200,LS200NDVOR 和 DVU)
SLS02BC: 含 DVU2120
SLS02BB: 含 DVU2115
SLS02BA: 含 DVU2105
SLS02C: 含 DVU175
SLS02A: 含 DVU150
-LR: 不含压力调节过滤阀
替换部件
密封套件 : 螺纹 , 垫圈 (1-3).O 型圈 , 密封塞 , 基座 , 软垫圈 .
压力膜片套件 :
压力膜片 , 压力膜片垫圈 ( 上 ), 压力膜片安装螺母 , 压力膜片盘 (1 或 2 片 ), 包装 ,O 型圈 , 顶杆 , 维修螺栓用密封垫圈 .
部件号 产品描述
DVU2120
55-00-0237 密封套件 ( 包括密封塞 )
55-00-0236 压力膜片套件
DVU2115
55-00-0241 密封套件 ( 包括密封塞 )
55-00-0240 压力膜片套件
DVU2105
55-00-0245 密封套件 ( 包括密封塞 )
55-00-0244 压力膜片套件
DVU175
55-00-0230 密封套件 ( 包括密封塞 )
55-00-0231 压力膜片套件
DVU150
55-00-0230 密封套件 ( 包括密封塞 )
55-00-0231 压力膜片套件
装运重量
DVU150/DVU175:9 磅 (4 公斤 ).
DVU150SS/DVU175SS:9 磅 (4 公斤 )
DVU2105/DVU2115/DVU2120:14 磅 (6.4 公斤 )
装运尺寸
8X8X12in (203x203x305mm)
如何订购 订购时请指明型号
型号 进气口 排气口 净尺寸 最大工作压力
DVU2120 2NPT 1 NPT 0.436in.(11mm) 2000psi
DVU2115 2NPT 1 NPT 0.576in.(15mm) 1500psi
DVU2105 2NPT 1 NPT 0.859in.(22mm) 500psi
DVU175 2NPT 3/4 NPT 0.359in.(9mm) 1800psi
DVU175SS 2NPT 3/4 NPT 0.359in.(9mm) 1800psi
DVU150 2NPT 1/2 NPT 0.359in.(9mm) 1800psi
DVU150SS 2NPT 1/2 NPT 0.359in.(9mm) 1800psi
DVU150 (55700299) DUMP VALVE (1800 PSI, 1 NPT INLET, 1/2 NPT OUTLET)
DVU2120 (55700311) DUMP VALVE (2000 PSI, 2 NPT INLET, 1 NPT OUTLET)
DVU175SS (55700302) DUMP VALVE (1800 PSI, 1 NPT INLET, 3/4 NPT OUTLET)
DVU175 (55700301) DUMP VALVE (1800 PSI, 1 NPT INLET, 3/4 NPT OUTLET)
DVU150SS (55700300) DUMP VALVE (1800 PSI, 1 NPT INLET, 1/2 NPT OUTLET)
DVU2105 (55700307) DUMP VALVE (500 PSI, 2 NPT INLET, 1 NPT OUTLET)
DVU2115 (55700309) DUMP VALVE (1500 PSI, 2 NPT INLET, 1 NPT OUTLET)
Murphy Scrubber Level Systems SLS
Murphy天然气压缩机洗涤罐液位控制系统 SLS
Murphy Scrubber Level Control System
天然气压缩机洗涤罐液液位系统用于天然气压缩机洗涤罐,通过液位开关控制沉淀物的排出,从而起到保护压缩机的作用。系统中使用的金属铸件符合在腐蚀环境内长时间使用的要求。

Murphy Models
(Includes LS200, LS200NDVOR and DVU valve) SLS2120: Includes DVU2120 valve SLS2115: Includes DVU2115 valve SLS2105: Includes DVU2105 valve SLS175: Includes DVU175 valve SLS150: Includes DVU150 valve -LR: Less regulator option
(Includes MLS-020, LS200NDVOR and DVU valve) MSLS2120: Includes DVU2120 valve MSLS175: Includes DVU175 valve MSLS150: Includes DVU150 valve -LR: Less regulator option
Murphy Part Number Model and Description Notes
Use Model Number
DVU2120
DVU2115
DVU2105
DVU175
DVU175SS
DVU150
DVU150SS
55000272 DVU2120 Seal Kit Service Parts
55000273 DVU2120 Diaphragm Kit
55000271 DVU2115 Seal Kit
55000273 DVU2115 Diaphragm Kit
55000270 DVU2105 Seal Kit
55000273 DVU2105 Diaphragm Kit
55000230 DVU150/175 Seal Kit
55000231 DVU150/175 Diaphragm Kit
55000255 DVU150/175 End Seal Kit
55000262 DVU150SS/175SS Seal Kit
55000231 DVU150SS/175SS Diaphragm Kit
55000263 DUV150ss/175SS End Seal Kit
Model Inlet Outlet Trim Size inches (mm) Working Max. Press.
DVU2120 2 NPT 1 NPT 0.500 (12.7) 2000 psi
DVU2115 2 NPT 1 NPT 0.571 (14.5) 1500 psi
DVU2105 2 NPT 1 NPT 0.791 (20.09) 500 psi
DVU175 1 NPT 3/4 NPT 0.359 (9) 1800 psi
DVU175SS 1 NPT 3/4 NPT 0.359 (9) 1800 psi
DVU150 1 NPT 1/2 NPT 0.359 (9) 1800 psi
DVU150SS 1 NPT 1/2 NPT 0.359 (9) 1800 psi

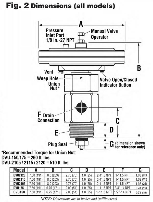
Dimensions (compare with chart on Diagram tab):
| Model |
A |
B |
C |
D |
E |
F |
G |
| DVU2120 |
7.50 (191) |
8.0 (203) |
2.75 (70) |
1.0 (25) |
2-11.5 NPT |
1-11.5 NPT |
1.03 (26) |
| DVU2115 |
7.50 (191) |
8.0 (203) |
2.75 (70) |
1.0 (25) |
2-11.5 NPT |
1-11.5 NPT |
1.03 (26) |
| DVU2105 |
7.50 (191) |
8.0 (203) |
2.75 (70) |
1.0 (25) |
2-11.5 NPT |
1-11.5 NPT |
1.03 (26) |
| DVU175 |
7.50 (191) |
6.75 (171) |
2.0 (51) |
1.0 (25) |
1-11.5 NPT |
3/4”-14 NPT |
0.73 (19) |
| DVU150 |
7.50 (191) |
6.75 (171) |
2.0 (51) |
1.0 (25) |
1-11.5 NPT |
1/2”-14 NPT |
0.73 (19) |
NOTE: Dimensions are in inches and (millimeters)
Murphy DVU Series are pneumatically controlled dump valves
Murphy DVU Series Dump Valves
Maximum Working Pressure:
- DVU150 and DVU175: 1800 psi (12.4 MPa) [124 bar].
- DVU2105: 500 psi (3.44 MPa) [34 bar].
- DVU2115: 1500 psi (10.3 MPa) [103 bar].
- DVU2120: 2000 psi (13.8 MPa) [138 bar].
Shipping Weights:
- DVU150 and DVU175: 9 lbs. (4 kg.).
- DVU150SS and DVU175SS: 9 lbs. (4 kg.)
- DVU2105, DVU2115, DVU2120: 14 lbs. (6.4 kg.)
Scrubber Level System Tools
Scrubber Level Control System Emissions Calculator (.xls, 613KB)
The SLS Emissions Calculator allows you to plug in application information, such as ambient temperature, dump frequency, dump rate and supply pressure, and provides the total system emission of gas per hour.
DVU Selection Guide (.zip, 327KB)
The DVU Selection Guide selects the appropriate dump valve model for the user using a series of calculations. This calculation is obtained after the user inputs application information such as diameter of vessel, duration of dump cycle, vessel pressure and pressure at outlet of DVU.
Operating Temperature: -30 to 250°F (-34.4 to +121°C)
Valve Operating Pressure:


- Maximum Working Pressure:
- DVU150 and DVU175: 1800 psi (12.4 MPa) [124 bar].
- DVU2105: 500 psi (3.44 MPa) [34 bar].
- DVU2115: 1500 psi (10.3 MPa) [103 bar].
- DVU2120: 2000 psi (13.8 MPa) [138 bar].
- Shipping Weights:
- DVU150 and DVU175: 9 lbs. (4 kg.).
- DVU150SS and DVU175SS: 9 lbs. (4 kg.)
- DVU2105, DVU2115, DVU2120: 14 lbs. (6.4 kg.)
- Shipping Dimensions: 8 x 8 x 12 in. (203 x 203 x 305 mm.).
- Wetted Parts:
- Standard Models:
- Body/Union Nut: 12L14 Carbon Steel, Electroless Nickel plated
- Stem: ANSI 303 SS
- Stuffing Box: ANSI 303 SS
- Seat: ANSI 303 SS
- Plug/Seal: ANSI 303 SS / 95 Durometer Urethane
- Stainless Steel Models:
- Body/Union Nut: ANSI 316 SS
- Stem: ANSI 316 SS
- Stuffing Box: ANSI 316 SS
- Seat: ANSI 316 SS
- Plug/Seal: ANSI 316 SS / 95 Durometer Urethane
Dimensions (compare with chart on Diagram tab) :
| Model |
A |
B |
C |
D |
E |
F |
G |
| DVU2120 |
7.50 (191) |
8.0 (203) |
2.75 (70) |
1.0 (25) |
2-11.5 NPT |
1-11.5 NPT |
1.03 (26) |
| DVU2115 |
7.50 (191) |
8.0 (203) |
2.75 (70) |
1.0 (25) |
2-11.5 NPT |
1-11.5 NPT |
1.03 (26) |
| DVU2105 |
7.50 (191) |
8.0 (203) |
2.75 (70) |
1.0 (25) |
2-11.5 NPT |
1-11.5 NPT |
1.03 (26) |
| DVU175 |
7.50 (191) |
6.75 (171) |
2.0 (51) |
1.0 (25) |
1-11.5 NPT |
3/4”-14 NPT |
0.73 (19) |
| DVU150 |
7.50 (191) |
6.75 (171) |
2.0 (51) |
1.0 (25) |
1-11.5 NPT |
1/2”-14 NPT |
0.73 (19) |
NOTE: Dimensions are in inches and (millimeters)

For more information about this product, you can download the related literature here:
DVU Selection Guide (.zip, 327KB) - The DVU Selection Guide selects the appropriate dump valve model for the user using a series of calculations. This calculation is obtained after the user inputs application information such as diameter of vessel, duration of dump cycle, vessel pressure and pressure at outlet of DVU.
Scrubber Level System - Sales Bulletin (04005; revision date: 09/2017)
Sales Bulletin (01069; revision date: 09/2015)
Installation Instructions (00-02-0483; revision date: 02/2016)
|